Ao clicar em "Aceitar", concorda com o armazenamento de cookies no seu dispositivo para melhorar a navegação, analisar a utilização e ajudar nos esforços de marketing no nosso site. Consulte a Política de Privacidade para saber mais.

Características Principais

3

Bathtub Icon

2

Scale

159 m2

Nota informativa: Aumento dos preços devido à inclusão de caixilharia em PVC no valor total.

Sobre a Habitação

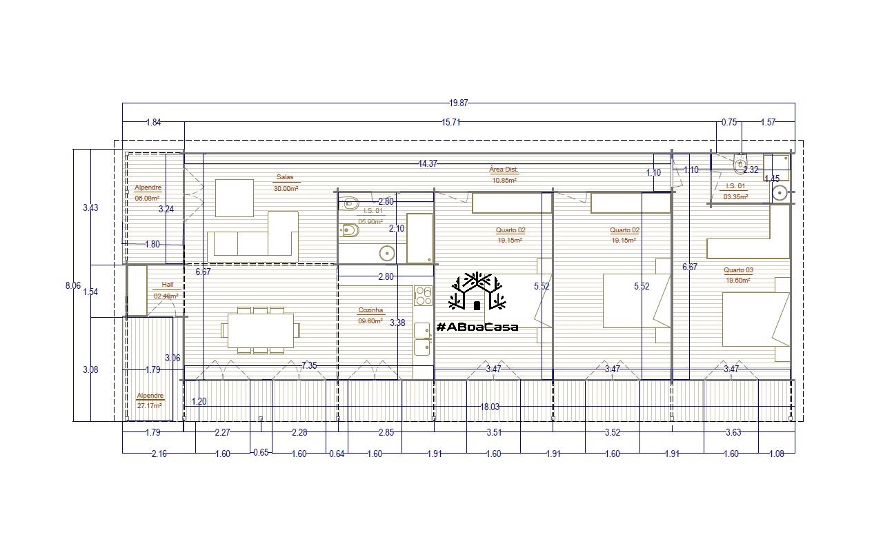
Casa Modular T3 | ABC410 (126m2+33m2) – Pack Painel Compósito com Parede Exterior Total de 234mm
‍O que está incluído:
  • Estrutura da casa em madeira de pinho nórdico de 44mm
  • Soalho de chão em pinho nórdico de 20 mm (soalho em madeira de 20mm, barrotes de 100mm fixados à base, manta térmica)
  • Portas interiores em pinho nórdico
  • Caixilharia exterior em PVC c/estore manual, na cor carvalho escuro e claro (estore elétrico ou sem estore - preço sob consulta)
  • Acabamento exterior em painel compósito de 234mm (parede simples de 44mm, membrana transpirante, lã mineral de 100mm, caixa de ar de 50mm, PC de 40mm)
  • Cobertura com painel isotérmico imitação de telha (forro de teto de 20mm, membrana transpirante, lã mineral de 100mm, painel isotérmico imitação de telha de 40mm)
  • Montagem da casa
  • Fornecimento e montagem do sistema elétrico
  • Fornecimento e montagem do sistema de canalização e saneamento
  • Transporte
  • Manual de instruções de montagem
  • Todas as ferragens

OBS: Os valores podem sofrer alterações após verificação da localização do terreno

IVA incluído

‍O que não está incluído:
  • Licenciamento (com o valor de 7 000€, inclui o projeto de arquitetura e projeto de especialidades submetidos a câmara municipal) - Prazo sob consulta
  • Base de assentamento (valor sob consulta)
  • Deck (valor sob consulta)

ENTREGA ENTRE 6 A 8 SEMANAS

Principais Características

  • Tipo de madeira estrutura/paredes – Pinho Nórdico maciço certificado
  • Dimensões exteriores (L x C) – 19,91m x 6,96m
  • Espessura paredes fachadas – 234mm
  • Espessura paredes interiores – 44mm
  • Tipo madeira cobertura – Forro 20mm, macho/fêmea, pinho nórdico
  • Tipo madeira pavimento – Soalho 20mm, macho/fêmea, pinho nórdico
  • Altura máxima - 3,40m
  • Altura mínima - 2,65m
  • Número de divisões – 6
  • Portas pinho nórdico – (L x A) 85cm x 200cm (5 un)
  • Caixilharia exterior em PVC - (L x A) 160cm x 210cm (7 un); 75cm x 103cm (1 un); 100cm x 210cm (1 un)
  • Vidro – Vidro duplo
  • Garantia 10 anos anti-apodrecimento estrutura e fachada dupla na opção de 234mm

Acabamentos exteriores disponíveis

Painel Compósito Cinza 7022
Painel Compósito Cinza 9006
Painel Compósito Madeira
Painel Compósito Pedra Branca
Painel Compósito Branco
Pack Painel Capoto 212mm (valor sob consulta)
Ficha técnica do produto
Download
Arrow
Right Arrow
Recebemos a sua mensagem. Obrigado!
Ops! Ocorreu um erro ao enviar o formulário.

Também Recomendamos

Pesquise por todo o tipo de casas de madeira, desde habitação, turismo, garagem, arrumos, até casas móveis. Dispomos da oferta ideal para si.

Explorar Todas as Casas
Arrow
Right Arrow
Buildings

138.000€

Casa Modular T3 ABC410

Bedroom icon

3

Bathtub Icon

2

Scale

159 m2

Casas Modulares T3
Buildings

134.000€

Casa Modular T3 ABC1530

Bedroom icon

3

Bathtub Icon

3

Scale

140 m2

Casas Modulares T3
Buildings

103.000€

Casa Modular T3 ABC1450

Bedroom icon

3

Bathtub Icon

2

Scale

104 m2

Casas Modulares T3
Buildings

112.000€

Casa Modular T3 ABC750

Bedroom icon

3

Bathtub Icon

2

Scale

120 m2

Casas Modulares T3